网站首页
关于我们
消防改造
消防维保
消防检测
工程案例
新闻资讯
消防产品
联系我们
欢迎访问成都里亚消防公司网站,专业消防改造、消防检测、消防维保公司!
关于我们
联系我们
服务热线:
028-60155938
网站首页
关于我们
消防改造
消防维保
消防检测
工程案例
改造项目
检测项目
维保项目
新闻资讯
公司新闻
行业新闻
消防产品
火灾自动报警系统
防排烟系统
气体灭火系统
消火栓系统
应急照明系统
自动喷水灭火系统
联系我们
热门关键词:
火灾自动报警系统
防排烟系统
气体灭火系统
消火栓系统
应急照明系统
搜索
ENGINEERING CASE
工程案例
改造项目
检测项目
维保项目
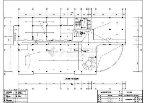
成都商业写字楼报警系统改造(报警点位平面图)
2022-04-24 17:13:32
返回上级
电话
短信
微信
返回顶部
028-60155938
在线咨询
微信二维码